Logo Haubarg Hochdorfer Garten in Tating bei St.- Peter-Ording
Haubarg Hochdorfer Garten, Tating bei St. Peter-Ording

Tagen und Wohlfühlen im Haubarg Hochdorfer Garten, Tating bei St. Peter-Ording
Unsere Preise
So finden Sie zu uns, Haubarg Hochdorfer Garten, Tating bei St. Peter-Ording
der Hochdorfer Garten
Unsere Onlineanfrage
Bilder der Ferienwohnungen
Bilder von Haus und Garten
kleines Blatt Haubarg Hochdorfer Garten BUCHUNG:
Fam. Kempf
Hochdorfer Weg 1
25881 Tating
Telefon & Fax:
04862/420
Haubarg
Hochdorfer Garten

Tating bei St. Peter-Ording
pixel
TAGEN UND WOHLFÜHLEN

(in den Monaten Nov. bis märz)

In einer schönen Parkanlage wurde das historische Reetdachbauernhaus im Jahre 1764 mit 1000 qm Grundfläche erbaut und im Jahre 1999 zu großzügigen Ferienwohnungen mit viel Komfort in unterschiedlichen Größen ausgebaut.
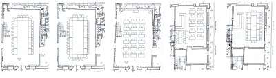
In den großen Dielen bieten wir Ihnen zwei/drei Tagungs-/ Veranstaltungsräume für 15-25 Personen bzw. für 50 Personen bei einer größeren Veranstaltung. Die Einrichtung kombinieren wir dabei nach Ihren individuellen Wünschen. Kaltes oder warmes Buffet kann bestellt werden. Damit ist der Haubarg als Seminarhaus für Sie nutzbar.

Haubarg Hochdorfer Garten - Tagen und Wohlfühlen Haubarg Hochdorfer Garten - Tagen und Wohlfühlen Haubarg Hochdorfer Garten - Tagen und Wohlfühlen

Der helle Tagungsraum mit großer heller Fensterfront hat ca. 60 qm, die nächsten Räume haben 40 qm, 30 qm und 100 qm. Ausgestattet ist der 60 qm große Tagungsraum mit Stellwand, Flipchart und Overheadprojektor. Restaurant und Café befinden sich im Nachbarhaus. Bitte nennen Sie uns Ihre Wünsche, wir erstellen Ihnen gerne einen Kostenvoranschlag.
Das Tagen kann durch ein umfangreiches Freizeitangebot abgerundet werden. Ob Wandern, Joggen, Radfahren, Schwimmen, Reiten, Saunen, Tennis und Golfen in Tating/St.Peter-Ording ist all das möglich. Der reizvolle Garten mit gemütlichen Gartenmöbeln lädt zum Verweilen im Freien ein. Für das gesellige Miteinander bietet sich die Kamindiele an.
Die Nordsee ist keine 5 Autominuten entfernt. Ganz gleich, ob Sie die Freizeit sportlich aktiv verbringen oder einfach nur ausspannen möchten - in der näheren Umgebung finden sich Freizeitangebote nach jedem Geschmack.

kleines Blatt Haubarg Hochdorfer Garten Wir freuen uns auf Ihre Anfrage ! kleine Blatt  Haubarg Hochdorfer Garten
Hochdorfer Garten 1 Pixel
Bestuhlungsvarianten:
Haubarg Hochdorfer Garten  - Tagen und Wohlfühlen
  Haubarg Hochdorfer Garten 1 Pixel   
kleines Blatt Haubarg Hochdorfer Garten [Home]  [Fewos]  [Tagen]  [Preise]  [Wegweiser][Hochdorfer Garten]  [Onlineanfrage]  [eMail] kleine Blatt  Haubarg Hochdorfer Garten